Consultez nos dernières publications

Réinitialiser
Reider Online

Publication de mariage Kayser-Dégardin

Reider Online

Déviation Cavalcade Koerich 07.03.2026

Reider Online

Communique Cavalcade Koerich 07.03.2026

Autorisations de construire accordées

Autorisation de construire 6 rue de la Montagne Koerich 304 1777

Analyse eau potable

Bulletin d'analyse de 2026

Analyse eau potable

Avis public Administration de la Gestion d'eau 23.02.2026

Règlements communaux Reider Online

Approbation fixation tarifs matériel et machines communales

Avis à la population Reider Online

Réglement communal sur la fixation des tarifs pour la mise à disposition de matériels, de salles et de machines communaux

Enquête de commodo et incommodo

Enquête de commodo et incommodo du 16.02.2026 AGRO PROJEKT

Enquête de commodo et incommodo

Enquête de commodo et incommodo du 16.02.2026 SARL MULLERPNEUS

Préavis Autorisations de construire

Numéro cadastrale 661 3316 Section B Goeblange

Préavis Autorisations de construire

Numéro adastrale 509 5081 Section A à Koerich

Transports publics Reider Online

Avis RGTR Nuetskavalkad Käerch 07.03.2026-08.03.2026

Reider Online

Avis Fuesbal an Nuetskavalkad Käerch 2026

De Bericht 2025

Reider Online

Avis règlement temporaire portant sur la rue de la Montagne à Koerich 11.02.2026

Préavis Autorisations de construire

Numéro cadastrale 1916 3864 section A Koerich

Préavis Autorisations de construire

Numéro cadastrale 1106 3392 section A Koerich

Enquête de commodo et incommodo

Enquête de commodo et incommodo du 12.02.2026

Autorisations de construire accordées

Autorisation de construire 15 rue de Windhof Koerich N6 2026

Enquête de commodo et incommodo

Enquête de commodo et incommodo du 09.02.2026

Formulaires

Demande de subsides Appareils Electromenagers editable

Reider Online

Avis règlement temporaire portant sur la rue de Steinfort n5-6 à Koerich 02.02.26

Offres d'emploi

Aide mémoire agent polyvalent

Offres d'emploi

Aide mémoire serrurier

Règlements communaux

DB assainissement

Règlements communaux

DB Fixation de la redevance eau destinée à la consommation

Règlements communaux

Règlement relatif aux nuits blanches

Règlements communaux

Règlement taxe pour chien adaptation

Enquête de commodo et incommodo

Enquête de commodo et incommodo du 20.01.2026 Equans S.A.

Autorisations de construire accordées

Autorisation de construire domaine du Beauregard 12 Goeblange N650 3287

Budget 2026 02
Budget 2026

Budget 2026

Autorisations de construire accordées

Autorisation de construire rue de Goeblange 6 Koerich N630 4049

Autorisations de construire accordées

Autorisation de construire rue de Luxembourg 4 Goetzingen N77 1933

Autorisations de construire accordées

Autorisation de construire rue d'Arlon 19 Windhof N1916 5278

Maison Relais

Aktivitéitenplang Fuesvakanz 2026

Maison Relais

Aktivitéitsplang MR Koerich - Février 2026

Reider Online

Avis règlement temporaire portantsur la rue de Windhof à Goeblange 19.1.2026

Autorisations de construire accordées

Autorisation de construire rue Principale 26 Koerich N415 5092

Autorisations de construire accordées

Autorisation de construire chemin de la fontaine 4 Koerich N239 4596

Autorisations de construire accordées

Autorisation de construire rue de Windhof 40B Koerich N322 4873

Reider Online

Avis règlement temporaire portant sur la rue d'Arlon à Windhof 12.01.2026

Autorisations de construire accordées

Autorisation de construire 9B rue du Bois Koerich N88 2025

Autorisations de construire accordées

Autorisation de construire rue des champs Koerich N95 2025

Autorisations de construire accordées

Autorisation de construire 6 rue des Champs Koerich N93 2025

Autorisations de construire accordées

Autorisation de construire 38 Domaine du Beauregard Koerich N83 2025

Autorisations de construire accordées

Autorisation de construire 9A rue du Bois Koerich N87 2025

Autorisations de construire accordées

Autorisation de construire rue des champs Koerich N96 2025

Formulaires

Demande de prime de vie chère 2025

Maison Relais

Aktivitéitsplang MR Koerich - Janvier 2026

De Buet

De Buet Réckbléck August-Dezember 2025

Autorisations de construire accordées

Autorisation de construire 3 rue Pierre Flammang Windhof N84 2025

Autorisations de construire accordées

Autorisation de construire 16 rue de Steinfort Koerich N89 2025

Autorisations de construire accordées

Autorisation de construire 24F rue du Moulin Koerich N76 2025

Autorisations de construire accordées

Autorisation de construire 33B rue de Steinfort Koerich N57 2025

Maison Relais

Menus MR Koerich S5-13

De Bericht

Rapport Conseil communal Séance du 29.10.2025 FR

Sica

Sica calendrier 2026

Reider Online

Fixation de la redevance eau destinée à la consommation

Reider Online

Fixation de la redevance assainissement

Autorisations de construire accordées

Autorisation de construire 10 rue de l'industrie Windhof N94 2025

Autorisations de construire accordées

Autorisation de construire 5 rue des champs Koerich N91 2025

Autorisations de construire accordées

Autorisation de construire rue du Bois Koerich N 92 2025

Autorisations de construire accordées

Autorisation de construire 58 rue de Windhof Koerich N86 2025

Autorisations de construire accordées

Autorisation de construire 10 chemin de la Fontaine Koerich N85 2025

Reider Online

Avis règlement temporaire portant sur rue de Windhof Goetzingen 01.12.2025

Enquête de commodo et incommodo

Enquête de commodo et incommodo du 28.11.2025 SARL Muller Pneus

Enquête de commodo et incommodo

Enquête de commodo et incommodo du 28.11.2025

Reider Online

Avis Rue d'Arlon à Windhof 27.11.25

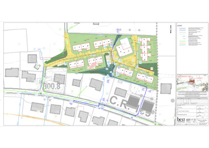
PAP QN Op Fulsbierg

Avis en matière d'urbanisme PAP-op Fulsbierg à Koerich

PAP QN Op Fulsbierg

Délibération du collège échevinal - mise en procédure PAP KOE19 à Koerich

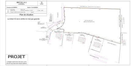
PAP QN Rue du Bois

Délibération collège échevinal-mise en procédure PAP KOE17 à Koerich

PAP QN Rue du Bois

Avis en matière d'urbanisme PAP Rue du Bois à Koerich

PAP QN Rue du Bois

ACTE

PAP QN Rue du Bois

Certificat OAI

PAP QN Rue du Bois

Concept de gestion de l'eau accord de principe

PAP QN Rue du Bois

Données structurantes relatives au plan d'aménagement particulier NQ

PAP QN Rue du Bois

Levé topographique

PAP QN Rue du Bois

Lullig Servitude

PAP QN Rue du Bois

Mandat

PAP QN Rue du Bois

Morcellement

PAP QN Rue du Bois

Notarvertrag Lulling Servitude

PAP QN Rue du Bois

PAP Rue du Bois Plan

PAP QN Rue du Bois

PAP Rue du Bois Schnitte

PAP QN Rue du Bois

Partie écrite règlementaire

PAP QN Rue du Bois

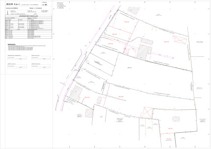
Plan cadastral

PAP QN Rue du Bois

Plan de canalisations

PAP QN Rue du Bois

Plan servitude

PAP QN Rue du Bois

Profil en long

PAP QN Rue du Bois

Projet d'Amenagement General Partie écrite du PAG

PAP QN Rue du Bois

Projet d'Amenagement General Partie graphique du PAG

PAP QN Rue du Bois

Rapport justificatif

PAP QN Rue du Bois

Regenwasserkanal Zusage

PAP QN Rue du Bois

Relevé parcellaire

PAP QN Rue du Bois

Schéma directeur

PAP QN Rue du Bois

Schéma directeur graphique

PAP QN Rue du Bois

Tableau récapitulatif

PAP QN Op Fulsbierg

Tableaux recapitulatifs données structurantes relatives

PAP QN Op Fulsbierg

Schémas directeurs

PAP QN Op Fulsbierg

Schémas directeurs partie graphique